INFILL HOUSING
creative urban living
![]() 1/4 | ![]() 2/4 | ![]() 3/4 |
|---|---|---|
![]() 4/4 |
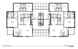
A classic 6 unit apartment building that can be built with open or screened central terraces. Each 1,950 s.f. home offers, a generous 575 s.f. open kitchen-living area, a Master with in-suite bath, 2 guest bedrooms with bath, powder room plus an added 125 s.f. study/den. A private 120 s.f. outdoor deck, in-unit laundry and utility complete the home. An optional elevator is available, and accessible to indoor parking and storage on the ground level. The plan uses "Green Building" applications and is designed to maximize energy efficiency with the use ICF insulated structural, exterior walls, energy efficient windows and roofing systems.
BUILDING PROPERTIES
PLAN MTL-4
dimensions
​
depth : 57' 0"
width : 114' 0"
height : 37' 3"
​
areas
​
total bldg. area : 11700 s.f.
1st. floor area : 1950 s.f.
2nd. floor area : 1950 s.f.
3rd. floor area : 1950 s.f.
deck: 120 s.f. ea.
terraces : 1035 s.f.
garage/storage: 3900 s.f.



